S-a ajuns la 100 semnături
Către: Primăria Ghimbav, Consiliul Local Ghimbav
Spunem NU dezvoltării haotice în Ghimbav!

Stimați reprezentanți ai Primăriei și ai Consiliului Local Ghimbav,
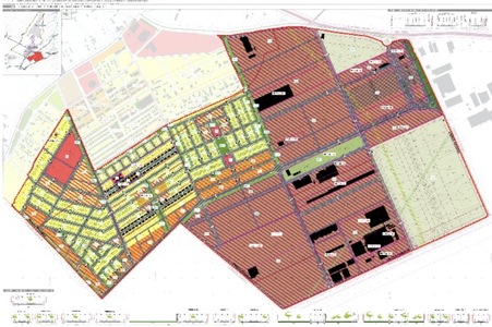
Noi, semnatarii acestei petiții, ne dorim o dezvoltare armonioasă și echilibrată a orașului nostru. Înțelegem nevoia de modernizare și extindere, însă considerăm că documentația PUZ aflată în prezent în consultare publică, intitulată „PUZ - Zonă cuprinsă între DN1 și Centura Ocolitoare Brașovului”, include reglementări care nu se potrivesc caracterului actual al zonei și depășesc cu mult înălțimile construcțiilor existente.
https://primaria-ghimbav.ro/serviciul-amenajarea-teritoriului-si-urbanism/documente-publicate/urbanism-2026-documente-publicate/
Zona vizată este formată în principal din locuințe individuale cu regim redus de înălțime (P+1) precum și câteva locuințe colective (P+1E+M), iar introducerea unor clădiri mult mai înalte (P+2E+ER/M sau chiar P+3E+ER cu înălțimea la cornișa de 17m) ar crea un dezechilibru major, atât vizual, cât și funcțional.
Ne îngrijorează în special:
• diferența mare de înălțime între construcțiile propuse și cele existente,
• traficul suplimentar generat într-o zonă cu străzi înguste, trotuare înguste,
• diminuarea spațiilor verzi,
• impactul asupra confortului locuitorilor,
• schimbarea majoră și ireversibilă a caracterului cartierului.
Ne dorim un Ghimbav modern și bine planificat, cu dezvoltări proporționale cu zona și respect pentru cartierele existente. Străzile liniștite nu ar trebui transformate în zone aglomerate de trafic și clădiri mult mai înalte decât casele din jur.
PUG-ul preliminar 2024 publicat de Primărie propune deja o abordare mai echilibrată pentru această zonă, cu înălțimi reduse și o tranziție firească între funcțiuni — o direcție care se potrivește mult mai bine caracterului cartierului.
https://ghimbav.mapshub.ro/gis/O3/consultari
Vă rugăm să reanalizați PUZ-ul actual și să luați în considerare o soluție urbanistică mai echilibrată, care să protejeze calitatea vieții locuitorilor.
---
Contextul PUZ-ului 2025
În anul 2025, un alt PUZ propus în zonă — care prevedea blocuri Sp+Pcom+2E+M+PL și un hotel S+P+3M+PL la intersecția străzilor Nufărului și Gențianei — a ridicat preocupări similare în rândul comunității.
Proiectul nu a fost avizat atunci, comisia tehnica a cerut revizuire proiectului.
https://primaria-ghimbav.ro/serviciul-amenajarea-teritoriului-si-urbanism/documente-publicate/urbanism-2025-documente-publicate/
Considerăm că problemele semnalate atunci rămân valabile și în cazul PUZ-ului actual, motiv pentru care solicităm o abordare urbanistică atentă, coerentă și adaptată realităților din teren.
Noi, semnatarii acestei petiții, ne dorim o dezvoltare armonioasă și echilibrată a orașului nostru. Înțelegem nevoia de modernizare și extindere, însă considerăm că documentația PUZ aflată în prezent în consultare publică, intitulată „PUZ - Zonă cuprinsă între DN1 și Centura Ocolitoare Brașovului”, include reglementări care nu se potrivesc caracterului actual al zonei și depășesc cu mult înălțimile construcțiilor existente.
https://primaria-ghimbav.ro/serviciul-amenajarea-teritoriului-si-urbanism/documente-publicate/urbanism-2026-documente-publicate/
Zona vizată este formată în principal din locuințe individuale cu regim redus de înălțime (P+1) precum și câteva locuințe colective (P+1E+M), iar introducerea unor clădiri mult mai înalte (P+2E+ER/M sau chiar P+3E+ER cu înălțimea la cornișa de 17m) ar crea un dezechilibru major, atât vizual, cât și funcțional.
Ne îngrijorează în special:
• diferența mare de înălțime între construcțiile propuse și cele existente,
• traficul suplimentar generat într-o zonă cu străzi înguste, trotuare înguste,
• diminuarea spațiilor verzi,
• impactul asupra confortului locuitorilor,
• schimbarea majoră și ireversibilă a caracterului cartierului.
Ne dorim un Ghimbav modern și bine planificat, cu dezvoltări proporționale cu zona și respect pentru cartierele existente. Străzile liniștite nu ar trebui transformate în zone aglomerate de trafic și clădiri mult mai înalte decât casele din jur.
PUG-ul preliminar 2024 publicat de Primărie propune deja o abordare mai echilibrată pentru această zonă, cu înălțimi reduse și o tranziție firească între funcțiuni — o direcție care se potrivește mult mai bine caracterului cartierului.
https://ghimbav.mapshub.ro/gis/O3/consultari
Vă rugăm să reanalizați PUZ-ul actual și să luați în considerare o soluție urbanistică mai echilibrată, care să protejeze calitatea vieții locuitorilor.
---
Contextul PUZ-ului 2025
În anul 2025, un alt PUZ propus în zonă — care prevedea blocuri Sp+Pcom+2E+M+PL și un hotel S+P+3M+PL la intersecția străzilor Nufărului și Gențianei — a ridicat preocupări similare în rândul comunității.
Proiectul nu a fost avizat atunci, comisia tehnica a cerut revizuire proiectului.
https://primaria-ghimbav.ro/serviciul-amenajarea-teritoriului-si-urbanism/documente-publicate/urbanism-2025-documente-publicate/
Considerăm că problemele semnalate atunci rămân valabile și în cazul PUZ-ului actual, motiv pentru care solicităm o abordare urbanistică atentă, coerentă și adaptată realităților din teren.
De ce este important?
Noi, semnatarii acestei petiții, susținem dezvoltarea Ghimbavului în acord cu PUG-ul preliminar la care Primăria deja a lucrat.
https://primaria-ghimbav.ro/serviciul-amenajarea-teritoriului-si-urbanism/pug-si-rlu-oras-ghimbav/
Vrem o dezvoltare corectă și în interesul comunității.
https://primaria-ghimbav.ro/serviciul-amenajarea-teritoriului-si-urbanism/pug-si-rlu-oras-ghimbav/
Vrem o dezvoltare corectă și în interesul comunității.